
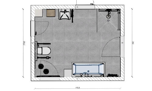
Das großzügige barrierefreie Bad mit 15,4 qm verfügt über mehrere Stützgriffe, die den Alltag in allen Lebens- und Alterslagen vereinfachen. Die Griffe können optional neben dem Waschtisch, WC oder in der Dusche bzw. an der Wanne angebracht werden – je nach dem wo Hilfe gewünscht ist.

Der Grundriss zeigt eine großzügige Raumaufteilung. Deutlich werden die kurzen Wege zwischen den einzelnen Bad-Elementen, die ein Rangieren z. B. mit einem Rollstuhl einfach gestalten. Barrierefrei bedeutet heute nicht mehr steril und einfach, sondern ist lediglich eine Anforderung und kann somit locker mit anderen Stilen mithalten. So bringen Regendusche und Badewanne Wellness in jedes funktionale Bad.
Die geräumige Aufteilung bietet jedem und vor allem Rollstuhlfahrern genügend Platz sich störungsfrei zu bewegen.

Hochschrank: DIANA
Waschtisch: DIANA
Stützgriff mit Handtuchhalter: DIANA
Armatur: Hansgrohe
Seifenspender: Keuco
Spiegel: AS
Verlängertes WC: Villeroy & Boch
Stützklappgriffe: DIANA
Bürstengarnitur: Keuco
Drückerplatte: Geberit

Wanne: Geberit
Armatur: Hansgrohe
Badheizkörper: DIANA
Handlauf: DIANA
Showerpipe: Hansgrohe
Eckschwammkörbe: DIANA


