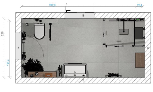
Entdecke moderne Badideen mit Frieling: Gemauerte Duschen, schwarze Armaturen und luxuriöse Details für dein kleines Badezimmer. Erlebe Luxus auf kleinem Raum und mit maximaler Funktionalität. Beim Betreten des Badezimmers wirst du von dem Einzelwaschtisch mit Spiegel begrüßt. Auf der linken Seite findest du die Toilette und dahinter die gemauerte Dusche, die mit Privatsphäre besticht. Mit Frieling gestaltest du dein luxuriöses, modernes Badezimmer mit kleinem Grundriss für deinen perfekten Start in den Tag.

Der Einzelwaschtisch ist ein Highlight. Mit einem weißen Waschbecken und einem großen, runden Spiegel bietet er Funktionalität und Eleganz. Der schwarze Waschtischunterschrank setzt moderne Akzente und bietet Stauraum. Diese Kombination passt perfekt zu deinem modernen Badezimmer Luxus.
Waschtisch inkl. Unterschrank – DIANA
Spiegel – AS Baddesign
Armatur – DIANA
Lotionspender – DIANA
Handtuchhaken – DIANA

Die Dusche ist mit einer Regendusche, die von der Decke hängt, ausgestattet, die ein unvergleichliches Duscherlebnis bietet. Die grauen Quadrat-Fliesen verleihen dem Raum eine zeitgemäße Optik und sind ideal für Badezimmer Ideen mit Dusche. Für einen stärkeren Wasserfluss sorgt die zusätzliche Kopfbrause, um die Haare besser ausspülen zu können.
Badheizkörper – DIANA
Kopfbrause – DIANA
Brauseset – DIANA
Duschrinne – TECE
Die Toilette gerät durch die Abmauerung der Dusche etwas in den Hintergrund und es wird ein kleiner Raum für mehr Privatsphäre geschaffen. Die clevere Badplanung schafft ein offenes, aber intimes Ambiente mit hellen Wänden, die das Raumgefühl verstärken.
Dusch-WC – DIANA
Drückerplatte – Geberit
Papierrollenhalter – DIANA
Bürstengarnitur – DIANA
Reserverollenhalter – DIANA

Dieses moderne Luxus Badezimmer vereint funktionale Raumaufteilung, stilvolle Designelemente und eine gemütliche Atmosphäre. Plane dein Traumbad mit Frieling. Wir begleiten dich von der Idee bis zur Umsetzung und arbeiten eng mit Handwerkern zusammen. Gestalte dein Wohlfühl-Badezimmer mit uns.


